유흥 및 편의시설 미용실 인테리어
페이지 정보

본문
안녕하세요!^^
이번에 소개해드릴 곳은 미용실 인테리어 현장입니다.
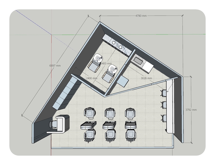
소형평수에 마름모 형태의 건물이여서
공간활용에 대해서 고민이 많았던 현장입니다.
공간에서 가능한 직선을 없에고
곡선으로 마감을 하여,
"美"에 대한 감각을 설개하였으며,
천장조명도 너무 화려 하지 않게
연출하여,
미니멀 인테리어를 진행하였습니다.

곡선형의 경대와 간접조명을 주었습니다.






<공사중 과정 소개 해드립니다.>






[이 게시물은 최고관리자님에 의해 2022-02-18 11:40:46 상업공간에서 이동 됨]
[이 게시물은 최고관리자님에 의해 2022-02-18 11:41:13 주거공간에서 복사 됨]
- 이전글수원 파비오 더씨타 1등 담소카페 인테리어 23.11.27
- 다음글왁싱샵 공사준비 20.06.25
댓글목록
등록된 댓글이 없습니다.
