로고

수원인테리어
로그인 회원가입
  • 시공갤러리
  • 상업공간
  • 시공갤러리

    상업공간

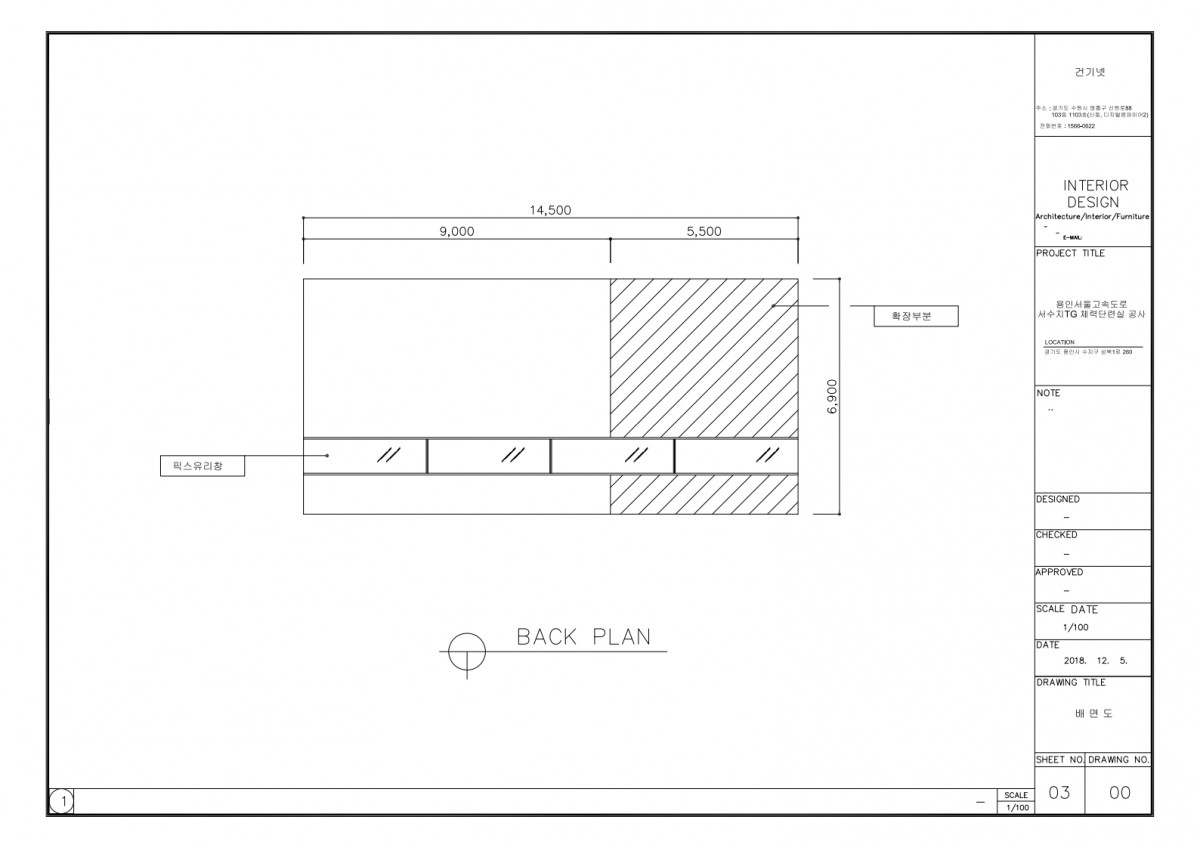
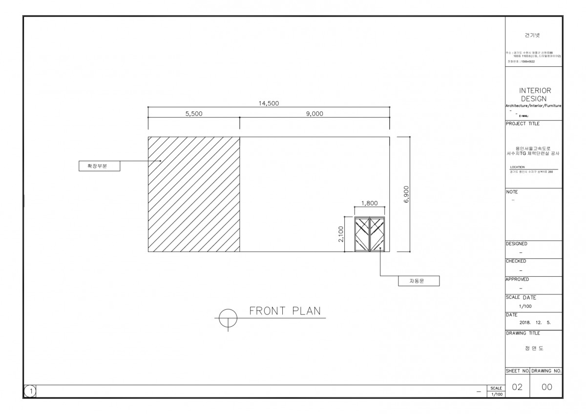
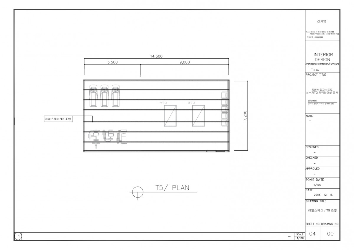
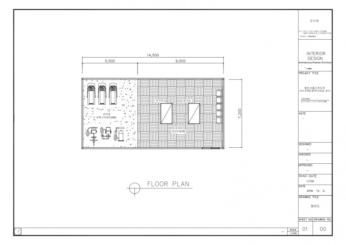
    체육시설 용인 - 서울고속도로 체력단련실 도면준비

    페이지 정보

    profile_image
    작성자 최고관리자
    댓글 댓글 0건   조회Hit 11,787회   작성일Date 20-07-13 12:33

    본문

    02c4036227cfc5b109e50ad46d10753a_1594611315_4651.jpg
    02c4036227cfc5b109e50ad46d10753a_1594611321_6434.jpg
    02c4036227cfc5b109e50ad46d10753a_1594611327_9248.jpg
    02c4036227cfc5b109e50ad46d10753a_1594611332_9518.jpg
    용인 - 서울고속도로 체력단련실 도면준비
     

    첨부파일

    댓글목록

    등록된 댓글이 없습니다.

    QUICK MENU

    회사소개

    사업영역

    시공갤러리

    견적문의

    공지사항

    상단으로