로고

수원인테리어
로그인 회원가입
  • 시공갤러리
  • 주거공간
  • 시공갤러리

    주거공간

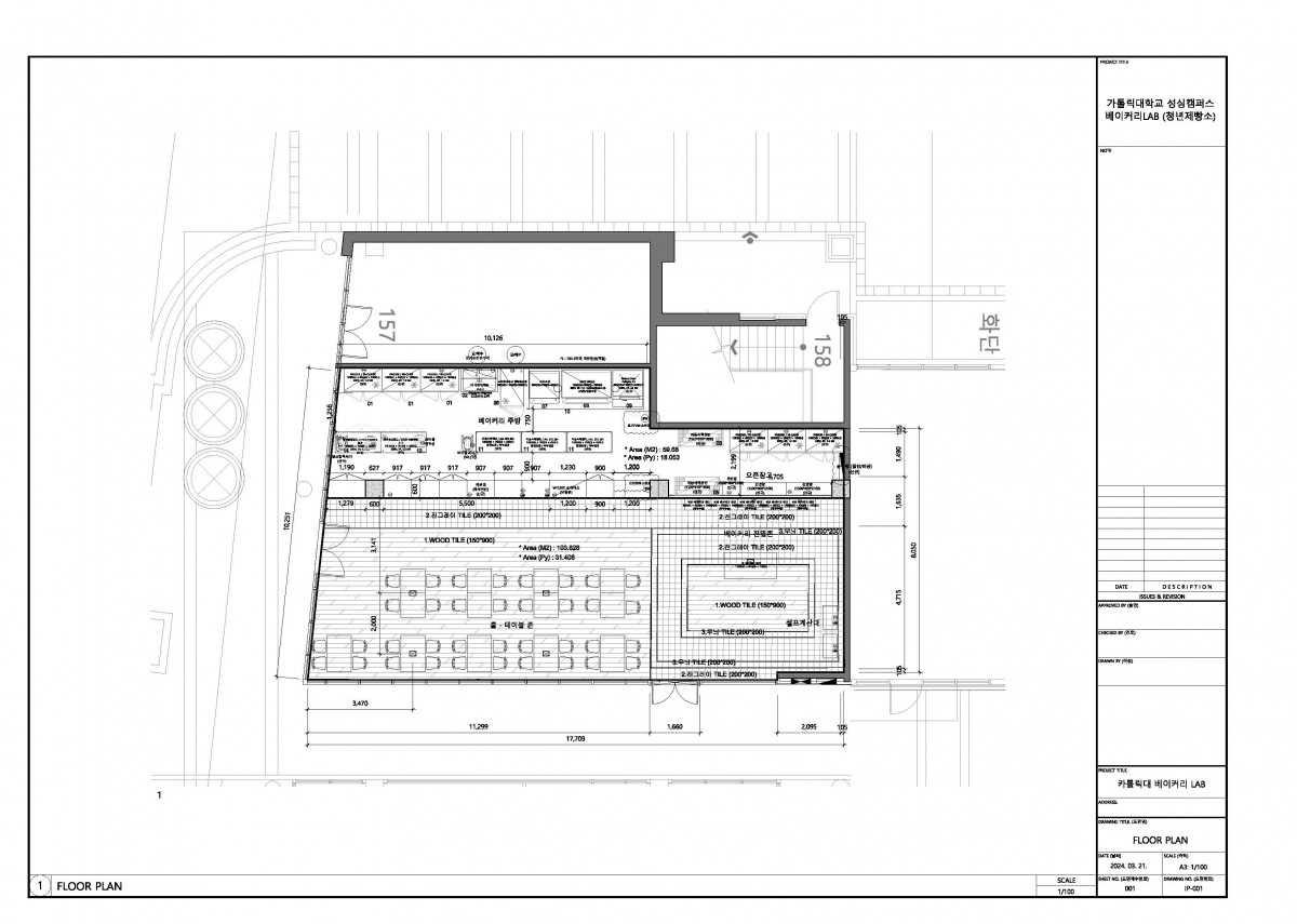
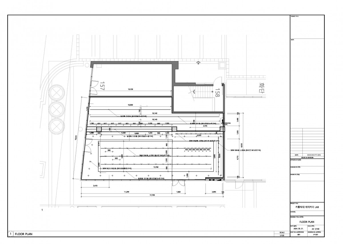
    음식점 베이커리 인테리어 공사

    페이지 정보

    profile_image
    작성자 최고관리자
    댓글 댓글 0건   조회Hit 6,682회   작성일Date 24-05-13 10:59

    본문


     따뜻한 베이지와 우드톤으로 꾸며진 베이커리 인테리어 공사 현장 소개

    고풍스럽고 아늑한 분위기

    베이지 컨샙과 우드 컬러를 조합하여 고풍스럽고 

    아늑한 분위기를 연출한 베이커리 인테리어 공사 현장을 소개합니다.


    디자인 특징

    • 베이지 컨샙: 따뜻하고 부드러운 베이지 컨샙은 공간 전체에 편안하고 친근한 느낌을 선사합니다. 
    • 벽, 천장, 바닥 등 주요 부분에 사용하여 베이스를 조성합니다.
    • 우드 컬러: 풍부한 자연미를 담은 우드 컬러는 테이블, 의자, 선반 등 가구에 활용하여 공간에 따뜻함을 더합니다. 다양한 톤의 우드 컬러를 조합하여 깊이감을 연출하기도 합니다.
    • 고풍스러운 디테일: 빈티지 조명, 골동품 장식품 등 고풍스러운 디테일을 곳곳에 배치하여 공간에 개성을 더합니다.



    기대 효과

    • 고객 유치: 따뜻하고 아늑한 분위기는 고객들에게 편안함을 선사하고 매장 방문을 유도합니다.
    • 브랜드 이미지 구축: 고풍스럽고 세련된 디자인은 베이커리의 브랜드 이미지를 긍정적으로 구축하는 데 도움이 됩니다.
    • 매출 증대: 매력적인 인테리어는 고객 만족도를 높이고 매출 증대에도 기여할 수 있습니다.

     

    af19f5a5483b8b12babe78e424c9a1b5_1715564921_415.jpg
    af19f5a5483b8b12babe78e424c9a1b5_1715564921_5406.jpg
    af19f5a5483b8b12babe78e424c9a1b5_1715564929_8671.jpg
    af19f5a5483b8b12babe78e424c9a1b5_1715564930_1306.jpg
    af19f5a5483b8b12babe78e424c9a1b5_1715564930_3859.jpg
    af19f5a5483b8b12babe78e424c9a1b5_1715564930_6574.jpg
    af19f5a5483b8b12babe78e424c9a1b5_1715564930_9257.jpg
    af19f5a5483b8b12babe78e424c9a1b5_1715564931_1912.jpg
    af19f5a5483b8b12babe78e424c9a1b5_1715564931_4485.jpg
    af19f5a5483b8b12babe78e424c9a1b5_1715564931_7015.jpg
    af19f5a5483b8b12babe78e424c9a1b5_1715564958_0132.jpg
    af19f5a5483b8b12babe78e424c9a1b5_1715564958_264.jpg
    af19f5a5483b8b12babe78e424c9a1b5_1715564958_513.jpg
    af19f5a5483b8b12babe78e424c9a1b5_1715564958_7863.jpg
    af19f5a5483b8b12babe78e424c9a1b5_1715564959_0226.jpg
    af19f5a5483b8b12babe78e424c9a1b5_1715564959_2418.jpg
    af19f5a5483b8b12babe78e424c9a1b5_1715564959_4858.jpg
    af19f5a5483b8b12babe78e424c9a1b5_1715564959_7549.jpg
    af19f5a5483b8b12babe78e424c9a1b5_1715564960_0232.jpg
    af19f5a5483b8b12babe78e424c9a1b5_1715564960_3015.jpg 

    주의 사항

    • 베이지와 우드톤만으로는 밋밋한 느낌을 줄 수 있으니, 적절한 액센트 컬러를 활용하여 공간에 생기를 더하는 것이 좋습니다.
    • 조명 설계도 매우 중요합니다. 따뜻하고 부드러운 조명을 사용하여 편안한 분위기를 연출해야 합니다.
    • 가구 배치는 공간 활용뿐만 아니라 동선 확보도 고려해야 합니다.

    이 외에도 궁금한 점이 있으면 언제든지 질문해주세요.


    상담문의 1544-4856





    [이 게시물은 최고관리자님에 의해 2024-05-13 11:01:44 상업공간에서 복사 됨]

    댓글목록

    등록된 댓글이 없습니다.

    QUICK MENU

    회사소개

    사업영역

    시공갤러리

    견적문의

    공지사항

    상단으로